2024. 11. 15. 11:37ㆍARCHITECTURE/RESIDENTIAL

Au Loin Residence
툴루즈 외곽의 새로운 개발 구역에 자리한 레지던스 Au Loin은 미래의 주거 공간을 상징하는 프로젝트입니다.
이 프로젝트는 특별한 혁신을 발명하거나 기존 생활 방식을 완전히 바꾸지는 않지만,
시대를 초월한 디자인을 통해 새로운 풍경과 고요한 생활 환경을 제공합니다.
이 건축물은 간단하면서도 효과적인 배치 원칙과 내구성이 높은 건축 선택으로 구성되어 있습니다.
GGR 에이전시의 가치를 반영하여 경제적, 지속 가능하며 인간 중심적인 공간을 지향합니다.
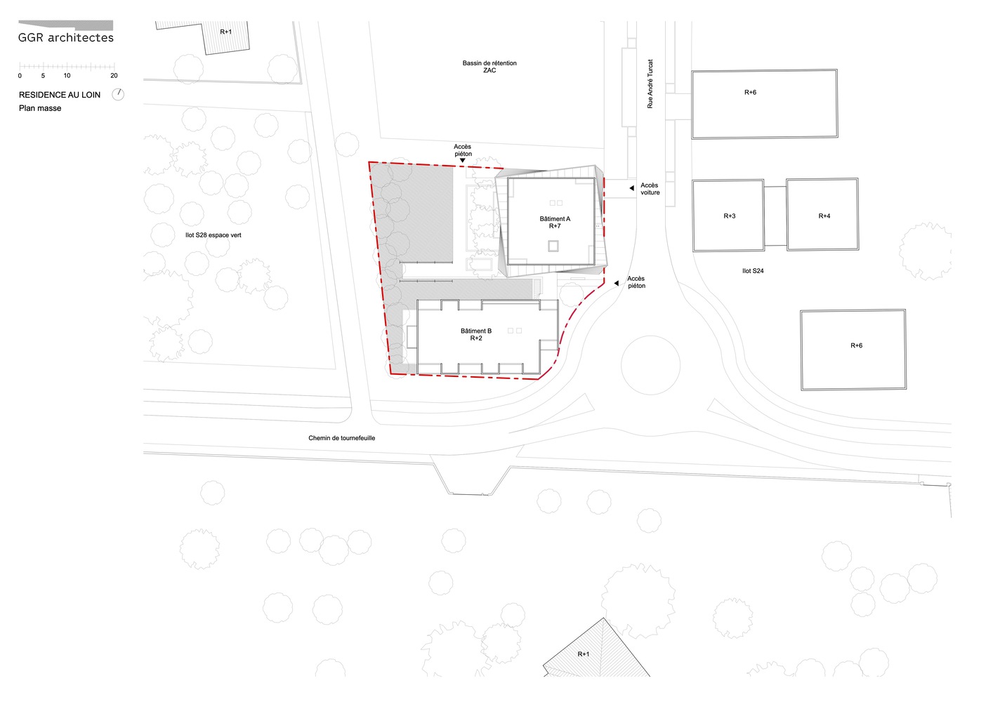
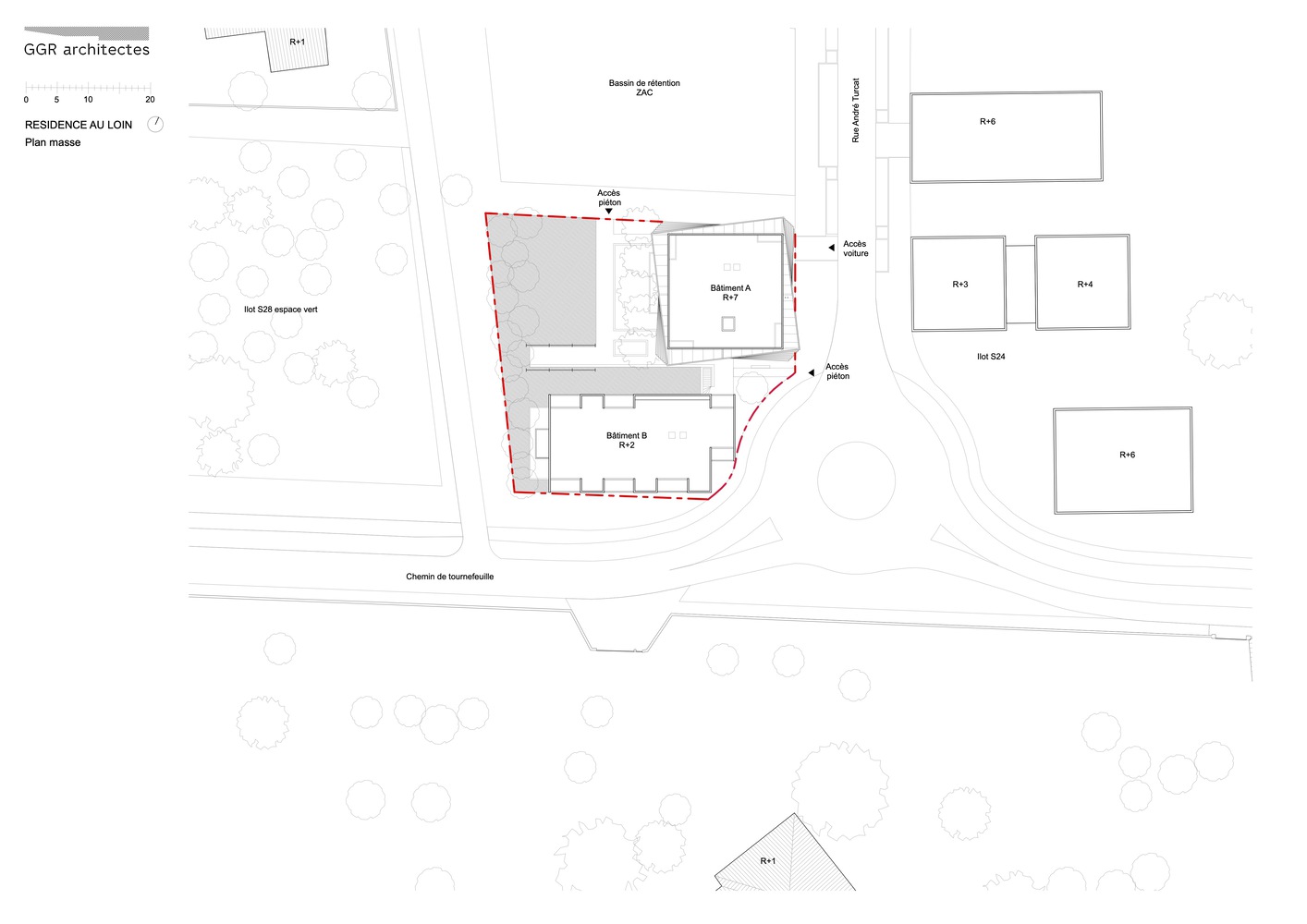
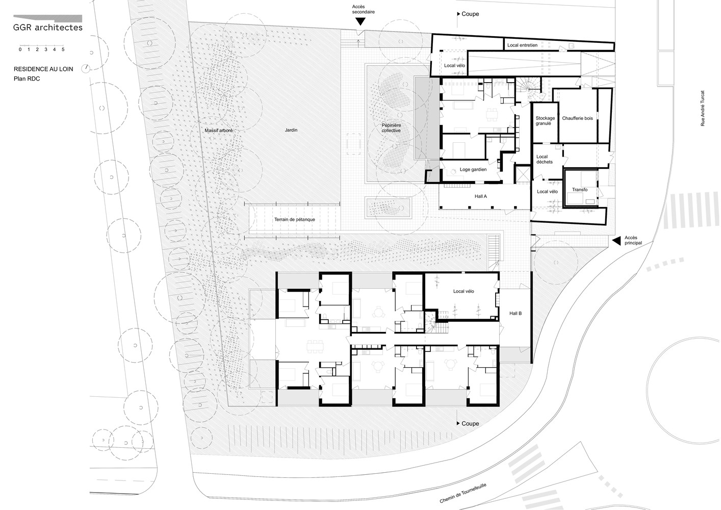
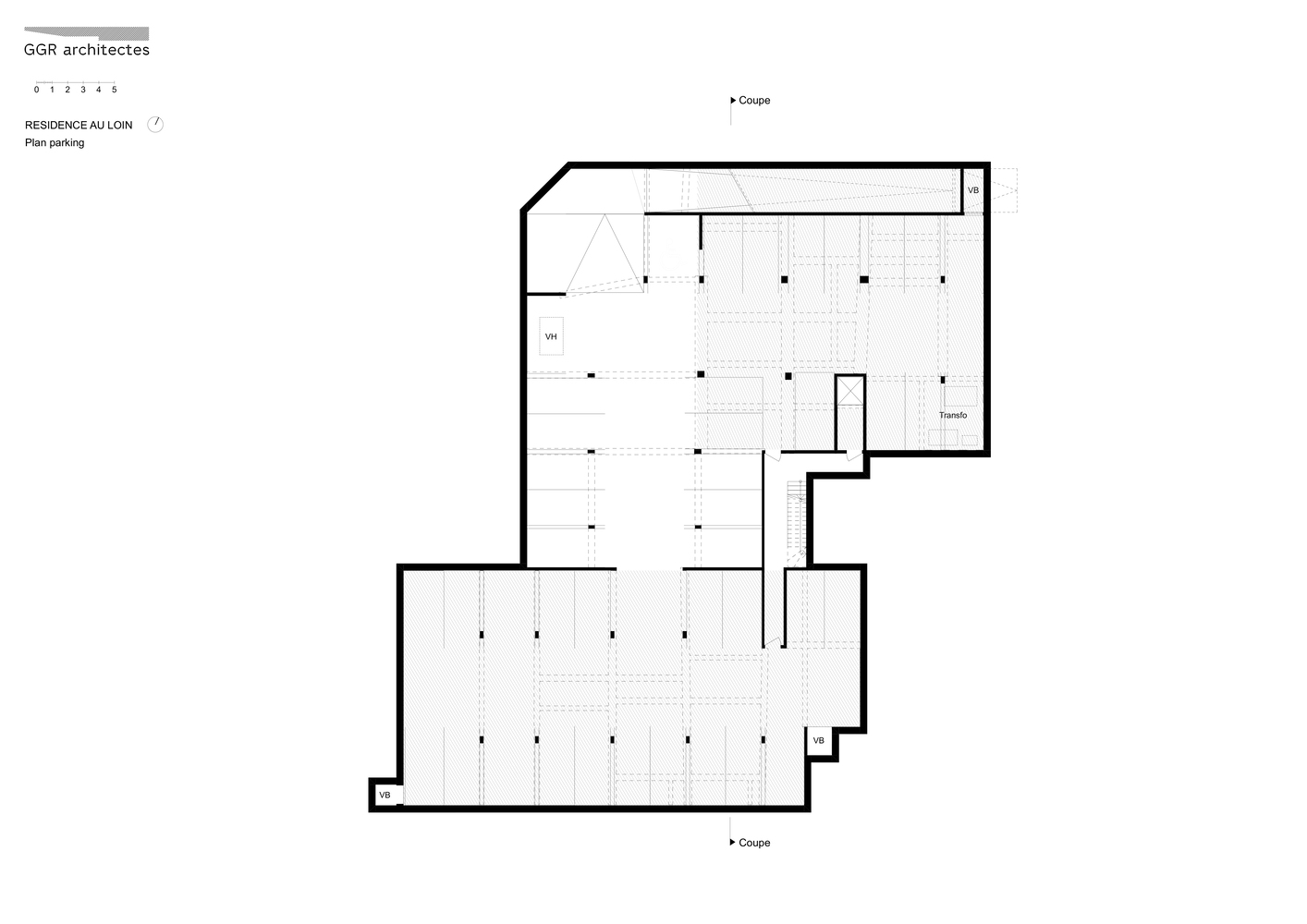
Au Loin 프로젝트는 주변 환경과의 조화를 중요시합니다. 협소한 모서리 부지에 위치하며, 개발 중인 지역의 주요 도로와 인접한 숲, 자연 하천과 접해 있습니다. 이를 고려해 두 개의 건물을 도로를 따라 배치해 공용 정원을 도로 소음으로부터 보호하고, 높이를 조절해 각기 다른 높이의 풍경을 제공합니다.
배치 및 생활공간
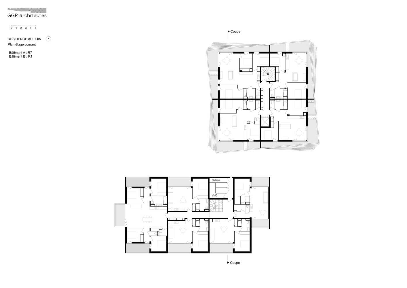
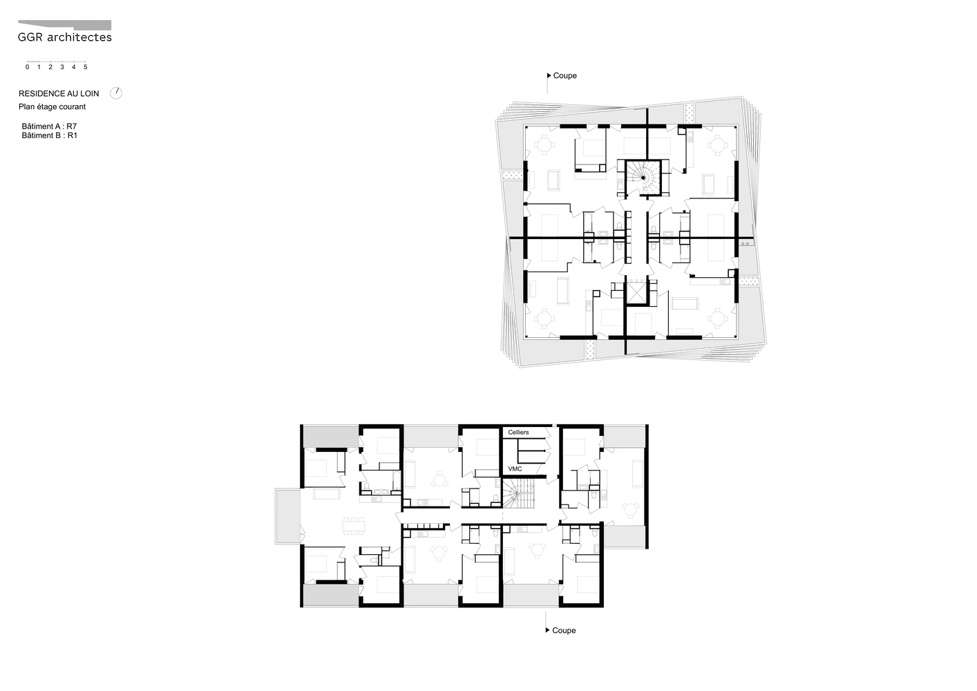
큰 건물: 최대 허용 높이까지 올라가며, 안뜰을 확보해 공용 공간이 탁 트이도록 설계되었습니다.
코너 아파트와 함께 높은 층에서는 탁 트인 전망을 제공합니다. 각 세대는 "전망 거실" 개념을 적용해 주변 경관을 감상할 수 있습니다.
작은 건물: 낮게 배치해 인접한 주거 환경과 자연스럽게 연결됩니다. 두 건물 사이의 공간은 레지던스의 입구가 되며, 유수지와 연결된 중앙 정원은 넓은 공용 정원처럼 느껴집니다.
작은 아파트(T2)와 큰 아파트(T5)가 함께 위치하며, 소음과 시각적 방해로부터 보호되는 프라이빗한 주거 공간을 제공합니다.
건축디자인
두 건물은 독특한 건축 양식을 가집니다. 큰 건물은 360도로 개방되어 있고, 작은 건물은 일부 폐쇄된 공간을 통해 개인 프라이버시를 제공합니다.
유리창은 발코니나 로지아 안쪽에 배치되어 벽돌과 콘크리트로 구성된 건축물의 질감을 돋보이게 하며, 각 아파트는 소음으로부터 보호받으면서도 주변 경관을 즐길 수 있습니다.
지속가능한 설계 와 생태적 가치
Au Loin 프로젝트는 지속 가능한 도시를 만들기 위한 목표로 설계되었습니다.
주거 환경을 사회적 교류와 여가, 산책, 휴식을 위한 공간으로 발전시키기 위해 아래와 같은 요소가 반영되었습니다.
ㆍ 소광장 : 두 건물 사이에 위치하여 주민들이 모일 수 있는 공간을 제공합니다.
ㆍ 녹지 공간 : 각 층의 프라이버시를 지키고 식물 성장에 적합한 깊이를 확보하기 위해 높이 조정된 식재 구역을 조성합니다.
ㆍ 대형 잔디밭과 녹지 : 주민들의 여가와 휴식 공간을 제공합니다.
ㆍ 빗물 수집 시스템과 내구성 있는 소재 : 지역 환경에 적합한 강한 식물들을 식재해
관리 비용을 절감하고 생태적 지속 가능성을 고려합니다.
The residence Au Loin is part of a new development zone on the outskirts of Toulouse. It is intended to be representative of innovation in construction and the housing of tomorrow. However, it doesn't invent anything. It also does not revolutionize the way of living. The primary concern of the residence Au Loin is to offer a new landscape for each of its homes. To achieve this, it is shaped by simple siting principles and architectural choices that have stood the test of time. Reflecting the values of the GGR agency, the Au Loin project aims to be economical, sustainable, timeless, and human-centered. Because a city cannot be built solely on achievements. The project aims to take advantage of the landscape qualities of a complex urban context: a narrow corner plot, located on the edge of the main axis of a developing neighborhood and bordering a wooded area and a 'wild' stream. To achieve this, two buildings are constructed along the street to protect the common garden from road nuisances. A large building rises to the maximum permitted height to free up the ground and allow the inner courtyard to breathe. A smaller building is lowered to engage in dialogue with the neighboring residential fabric. The space between the two buildings forms the entrance to the residence. The void of the central garden connects with the void of the retention basin of the development zone, giving residents the impression that their common garden is immense.
The small building and the large one are different. Their unique architecture, side by side, helps manage the visual relationships between the apartments. The large building radiates 360°. The small building opens towards the open views and closes off on the side facing the neighboring building and the roundabout. However, both architectures follow similar principles. The glass windows are set back, behind balconies or loggias, blending into the background to highlight the brick and concrete masses. Far from the classic design of residential buildings where windows express domestic use, the 'Au Loin' residence is made up of blind vertical brick volumes and thick horizontal concrete layers. These masses protect the apartments from urban nuisances. Yet, they open generously to the surrounding landscape, each in its own way. The corner apartments of the large building and the framed, oriented apartments of the small building offer two different ways of living. The architecture of each building is a direct expression of the quality of its apartments.
All the apartments in the project benefit from one or more distant views. The views from the R+2 building are directed, while those from the R+7 building are open and vary according to the height. The rotation of the balconies around a common core on all floors creates balconies with variable geometries. The green courtyard of the residence contributes to the landscape design of the development zone through its continuity with the retention basin. The latter can be seen between the R+2 and R+7 buildings, through the angled entrance hall. The large building is scaled to match the vast landscaped areas of the development zone. It is a tall collective building that residents can recognize from afar. It features balconies that conceal the large corner windows, which are not visible from the ground floor. It offers, admittedly, a classic way of living in a collective setting but provides a 'belvedere-living room' in each apartment (T3, T4). The small building reflects the scale of the villas in St. Martin du Touch, which border the south and east of the plot. It mixes the smallest apartments (T2) with the largest ones (T5). It offers a more individual way of living by protecting each apartment from noise and visual disturbances. Its architecture, composed of blind vertical brick masses, isolates the loggias from each other and borders the roundabout without impacting the residents. Side by side, the two buildings coexist harmoniously: the careful orientation of the apartments in the small building avoids direct views into neighboring apartments and offers the opportunity to enjoy distant views.
Landscape - The Au Loin project is driven by a shared ambition among local stakeholders: to create a sustainable city where the living environment supports social life, exchanges, relaxation, walking, and leisure. Key features include: 1. A small square that connects the two buildings 2. Planted areas on raised slabs to provide privacy for the ground-floor apartments and to create enough soil depth for proper plant growth 3. A large activity lawn 4. A stabilized area under a pergola 5. A generously planted perimeter with a swale to collect rainwater and ensure level transitions with the surrounding areas. Sustainability is integral to how these spaces are designed. The principle of sustainability is reflected in: Conceptual choices that promote accessibility for everyone, reducing maintenance and cleaning operations, systems for rainwater collection, selecting materials that are raw, durable, and adapted to the local context, and choosing hardy plants suitable for the local and residential environment.
Au Loin Residence
TOULOUSE, FRANCE
Architects : GGR architectes
Area : 2,934㎡
Year : 2024
Photographs : Atelier Félix Faure




































from archdaily
'ARCHITECTURE > RESIDENTIAL' 카테고리의 다른 글
| 숲 속 빛의 공간을 만든 주택[Dinh House] - Story Architecture (0) | 2025.04.09 |
|---|---|
| 방으로 빛을 들여오는 주택[Sunroom House in Tsukaguchi] - FujiwaraMuro Architects (1) | 2025.02.25 |
| 오슬로 도심 속 파스텔 톤 타운하우스 [Sagene Wood Trade] - Reiulf Ramstad Arkitekter (0) | 2024.11.14 |
| 젊은이와 노인을 위한 네덜란드 임대 주택[Plot 6 Social Housing] - HOH Architecten (1) | 2024.11.01 |
| 산티아고 경사지 주택[Sloping House] - Claudio Santander + María Ines Buzzoni (1) | 2024.10.25 |