2024. 11. 1. 15:59ㆍARCHITECTURE/RESIDENTIAL

Plot 6은 암스테르담의 산업지역이었던 Oostenburgereiland의 대규모 도시 재생 프로젝트의 일환으로, 약 1,500가구가 거주할 수 있는 새로운 주거 단지로 변모하는 중입니다. 이 단지는 젊은이와 노인을 위한 사회적 임대 주택으로 구성되었으며, 두 세대를 위해 각기 다른 건축적 특성을 반영한 다양한 주거 환경을 제공합니다.
환경과 조화를 이루는 건축적 접근이 돋보이는 이 주거 단지는, 도시와 자연, 개인과 공동체가 공존하는 미래형 주거 모델을 제시합니다.
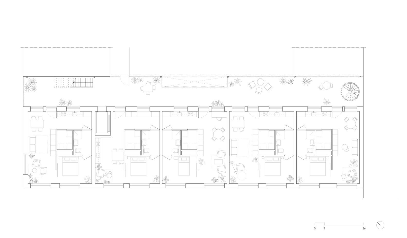
Next Architects가 설계한 ‘De Stork’ 타워와 Urban Echoes가 설계한 ‘De Sluis’와 ‘De Werkplaats’ 블록에 위치하며, 시니어 아파트: HOH Architects가 설계한 모퉁이 건물인 ‘De Stoomkracht’에는 시니어를 위한 30개의 아파트가 자리잡고 있습니다.
주요 건축 요소
Oostenburgereiland의 맥락과 조화
Plot 6의 건물들은 섬의 중심 도로인 Oostenburgermiddenstraat에 주요 출입구를 두고 있어 도시 환경과 자연스럽게 연결됩니다. 단지의 북쪽에는 철도에서 볼 수 있는 랜드마크인 주거 타워가, 남쪽에는 INIT 건물과 조화를 이루는 좁고 긴 모퉁이 건물이 배치되어 있습니다.
공동체를 위한 옥외공간 - 커뮤니티 중정 정원
단지 중앙에는 커뮤니티 중정 정원이 있어 젊은층과 시니어들이 서로 교류하며 휴식할 수 있는 녹색 공간을 제공합니다. 정원은 두 개의 층으로 나뉘어 있으며, 하나는 그늘진 정원, 다른 하나는 햇볕이 잘 드는 옥상 정원입니다. 넓은 계단에는 화분이 배치되어 있어 계단이 정원의 일부가 되며, 무광 반사 코팅이 적용되어 정원이 더 넓어 보이도록 시각적 효과를 줍니다. 또한 인근 주차장을 녹지로 덮어 정원의 일부로 통합해 생태적 다양성을 높였습니다.
모듈형 디자인과 실용적 공간 활용
시니어 아파트는 검은 모듈 벽돌로 마감되어 있으며, 큰 창문들이 독특하게 배치되어 있습니다. 40m²의 컴팩트한 내부는 시니어들의 편의성을 고려해 중앙 코어(욕실, 화장실, 수납 공간) 주변으로 유연한 동선을 제공하고, 기능과 개방감을 극대화할 수 있는 레이아웃이 특징입니다.
3미터 너비의 소통공간 - 도시적 규모와 소규모 커뮤니티의 조화
모퉁이 건물의 일부는 3미터 너비로 설정되어 주민들의 수직 이동 및 만남의 공간으로 기능하며, 금색 포털 입구와 스테인리스 메시로 마감되어 중정의 녹지와 조화를 이루는 등반 식물로 덮일 예정입니다.
Plot 6 is an urban ensemble with social rental housing comprising 170 studios for young people and 30 apartments for seniors. It is part of the significant urban transformation of the former industrial area Oostenburgereiland into a new residential district with approximately 1,500 homes in Amsterdam. The studios for young people are housed in the residential tower 'De Stork,' designed by Next Architects, and residential blocks 'De Sluis' and 'De Werkplaats,' designed by Urban Echoes. The apartments for seniors are located in the corner building 'De Stoomkracht,' designed by HOH Architects. HOH was also responsible for the design of the urban ensemble and the courtyard garden.
The ensemble explicitly connects to the urban context of Oostenburgereiland and its characteristic dense structure of individual buildings. All buildings have their entrance on the main street of the island, the Oostenburgermiddenstraat. In terms of buildings, the residential tower is the landmark visible from the railway on the north side of the ensemble. The long and narrow corner building on the south side connects the ensemble to the robust scale of the INIT building, which houses among others, the newspaper De Volkskrant and the municipal cleaning service. At the same time, Plot 6 also has an intimate and unique character in the form of the communal courtyard garden. This garden forms a green oasis of tranquility and meeting space for residents, both young and old, amidst the hustle and bustle of this new and vibrant district.
The garden is located on two levels, each with its own character and planting plan: a shady garden with trees planted in the full soil and a sunny garden on the roof of a logistical corridor running across the plot, intended for the municipal cleaning service. The levels of the courtyard garden are connected by a generous staircase equipped with planters, integrating the stairs into the garden. The staircase and corridor are clad with a matte reflective coating, making the relatively small garden appear larger and reflect as much light as possible into the garden.
By covering the adjacent parking garage with greenery, it is incorporated into the courtyard garden design. This enhances biodiversity, appearance, and acoustics in the heart of the plot, and the garden's planting plan allows the various seasons to be experienced. The corner building translates the urban principle of contrasting individual buildings into architectural principles by splitting the building into two parts in terms of function and materialization, creating a double building. One part, 3 meters wide, serves as a spacious entrance for the residential building, vertical circulation, outdoor space, and a meeting place for residents. This part features a gold-colored entrance portal, an industrial materialization, and is finished with stainless steel mesh as fall protection, which will be covered with climbing plants on the garden side, blending it with the courtyard garden's greenery.
The other part, at the corner of the ensemble, houses an open workspace on the ground floor and 30 apartments for seniors on the upper floors, constructed from black module bricks. The large square window openings are staggered within the strict square grid of the bricks, giving the heavy building a playful appearance and allowing the individual apartment to blend into the collective whole. The compact apartments (usable area 40m2) have a smart layout that is user-friendly for seniors who may later experience limited mobility. A core with a bathroom, toilet, storage, and installations is the central element around which the resident can move freely. The core allows both a flexible layout and a clear separation from the private domain without compromising the functionality and spaciousness of the apartment.
Plot 6 Social Housing
AMSTERDAM, NETHERLANDS
Architects : HOH Architecten
Area : 3360㎡
Year : 2024
Photographs : Anna Odulinska



























from archdaily