2021. 4. 26. 11:53ㆍARCHITECTURE/RESIDENTIAL


고층 건물들이 들어서있는 오래된 오사카 시내의 길고 좁은 대상지에 자리잡은 조그만 주택은 자택근무 빈도가 높은 맞벌이 부부와 그 자녀로 구성된 클라이언트의 요청으로 가족과의 연결감을 유지하면서 일할 수 있는 공간으로 계획되었다.
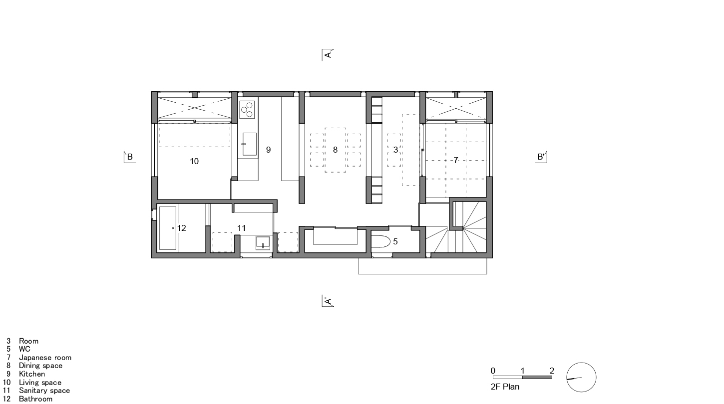
각 방들은 벽으로 나누어져 있지만, 각 벽의 중앙에는 다른 방들을 통해 바깥으로 내다볼수 잇는 구멍이 있으며,
분리되어있지만 연결된 디자인은 주민들이 서로의 존재감뿐만 아니라 개구부를 넘어서는 공간의 확장성을 감지할수 있게 해준다.
House in Uehonmachi
Osaka, Japan
Architects : FujiwaraMuro Architects
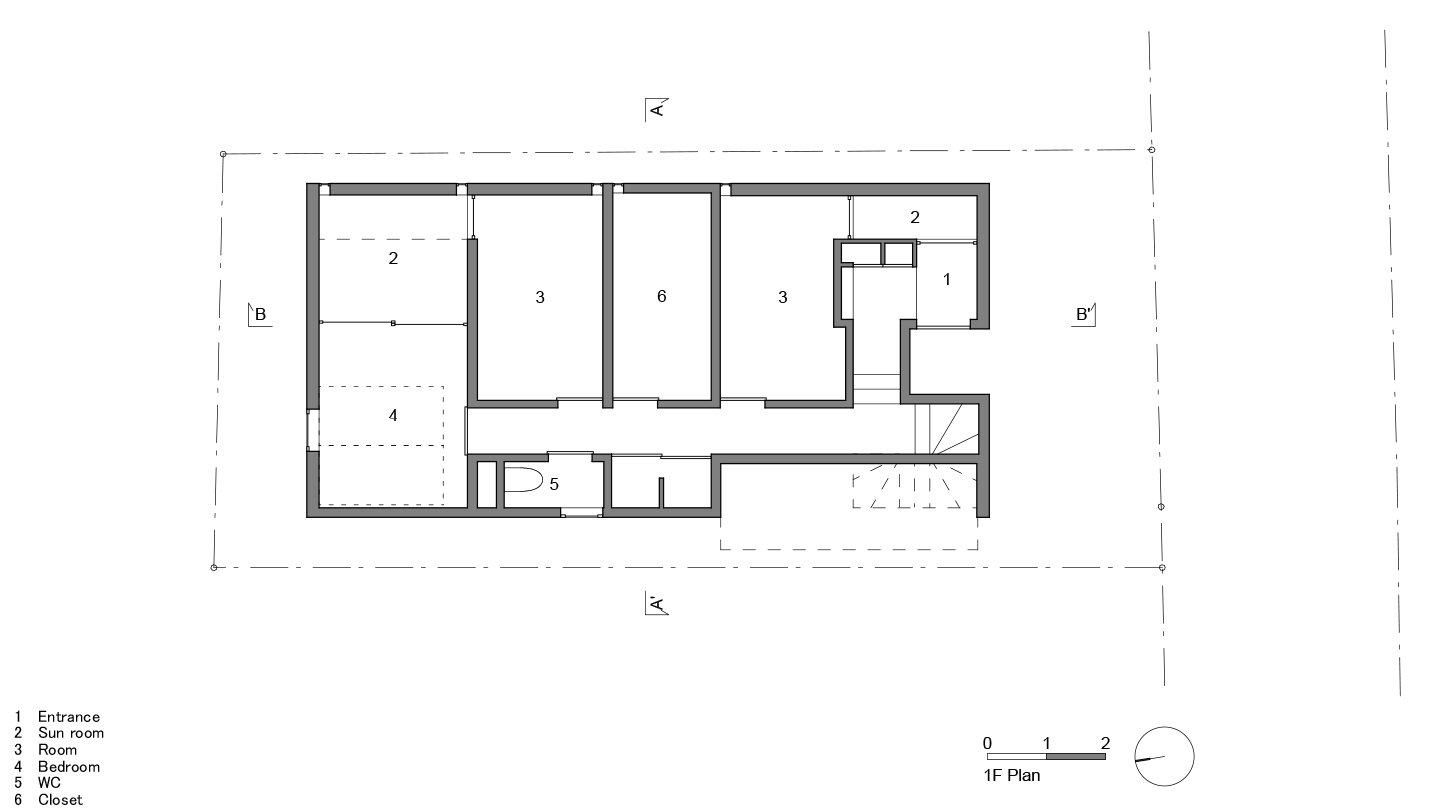
Area : 62㎡
Year : 2019
This residence sits on a long, narrow property in urban Osaka that will likely become increasingly hemmed in by high-rise buildings in the future. The residents are a working couple, both of whom frequently work at home, and their children. They requested a design that would allow them space to work while still maintaining a sense of connection with the family
Over the course of several conversations about the best way to achieve this—by dividing the rooms, creating a single interconnected space, or finding a solution between these two extremes—we concluded that creating gradations of functionality and natural light was the ideal way to achieve the client’s goals.
The second floor is devoted to shared spaces including the living room, kitchen, dining room, home office, and Japanese-style room. These rooms are divided by walls, but in the center of each wall is an opening that offers views through the other rooms to the outside. This separate-but-connected design allows the residents to sense one another’s presence as well as the expansiveness of the space beyond the openings.
The rooms can be used in various ways depending on who is using them and where the other family members are, so while we did envision basic patterns of use while designing the home, we expect the family to continue exploring their own best ways of living in the space over time. The first floor is occupied by bedrooms, which family members tend to use at different times of day. Both the children’s room and the master suite face onto sunrooms that bring in natural light and ventilation while maintaining privacy.



















from archidaily
'ARCHITECTURE > RESIDENTIAL' 카테고리의 다른 글
| 툇마루와 덧지붕을 가진 주말주택[Bugok Friday House] - TRU Architects (0) | 2021.12.24 |
|---|---|
| 하얀 정면을 갖고 4개 단위로 나누어진 상가주택 [Curtain Call Apartments] - Todot Architects and Partners (0) | 2021.12.02 |
| 도심 경계면 DA공간을 활용한 주거[HANEGI PLUS House] - Furuya Design Architecture Office (0) | 2021.11.18 |
| 맥시코시티 집합주거[Tepic 22] - tallerdea (0) | 2021.07.22 |
| 노인주택[R+B Diseño Experimental] - HG Gerontological Home (0) | 2021.04.21 |