2021. 11. 18. 11:23ㆍARCHITECTURE/RESIDENTIAL

Hanegi, Setagaya-ku, Tokyo. A rare location that combines the convenience of being within walking distance of Meidaimae Station(semi central station), with the environmental friendliness of a residential area.
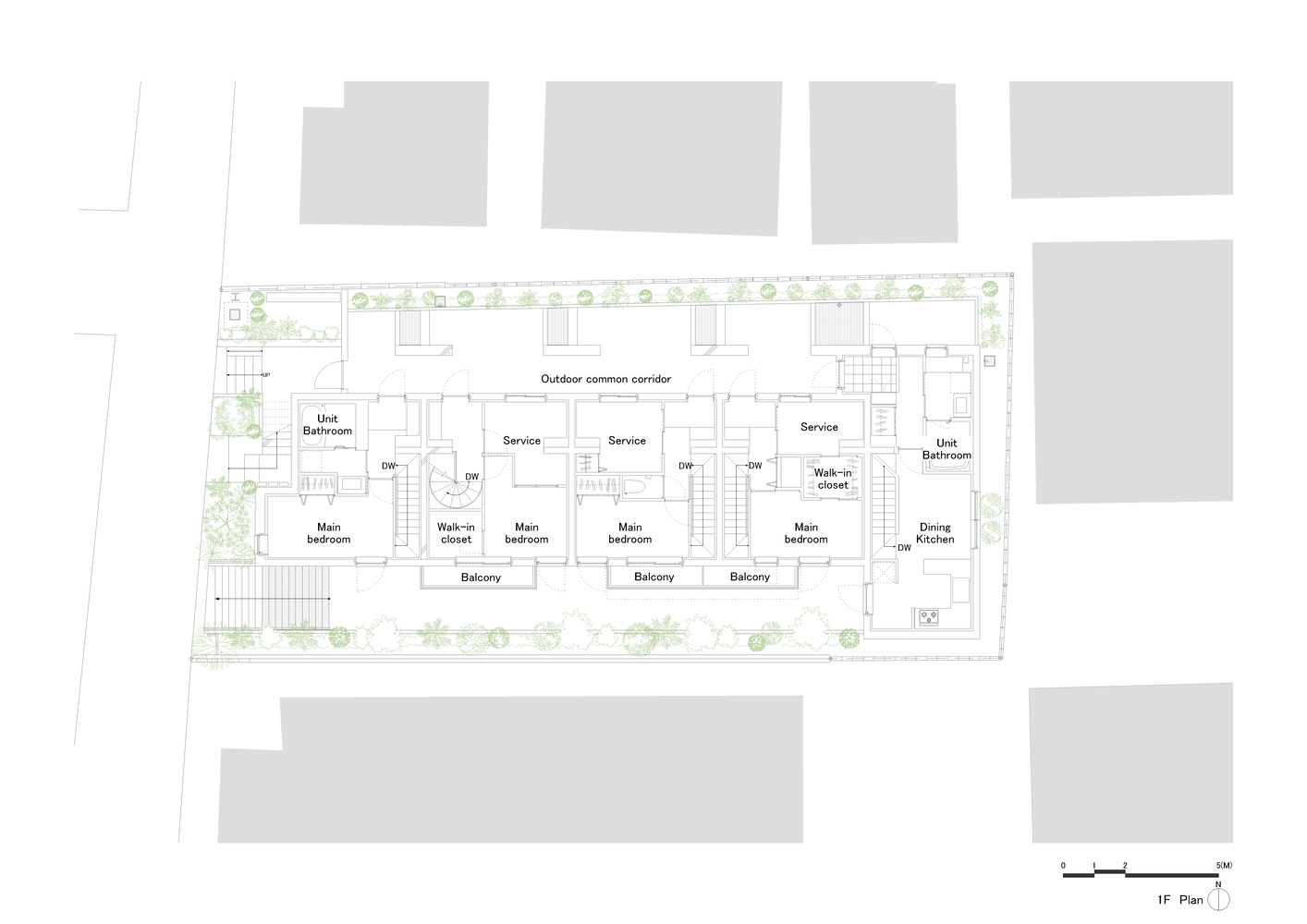
Despite the legal restrictions on the construction of the site, the cross-sectional shape reflects the shape of the building, which has been earnestly acquired the required volume to ensure cost performance as a cooperative-house project. The façade has a dry area that brings light to the basement and a one-sided roof full of legal restrictions lines that floats from the Grand Level like large feathers.
The tip of the retaining wall that recedes from the site boundary line is squeezed to bring green to the dry area, and the feather-shaped façade and all the green are integrated to connect the cityscape and the plantation in the depth direction. There are two entrances on the façade that approach the common corridors on the 1st and 2nd floors, because of the plan format in which the basement floor and the 1st floor, and the 2nd and 3rd floors, as maisonette type dwelling units.
In order to secure as much green as possible between each entrance, the three flow lines are all planted, including the evacuation stairs approach to the underground dry area. And the combination of these green spaces makes the relationship between the town and the building borderless.
HANEGI PLUS House
SETAGAYA-KU, Japan
Architects : Furuya Design Architecture Office
Area : 726㎡
Year : 2019












from. archdaily
'ARCHITECTURE > RESIDENTIAL' 카테고리의 다른 글
| 툇마루와 덧지붕을 가진 주말주택[Bugok Friday House] - TRU Architects (0) | 2021.12.24 |
|---|---|
| 하얀 정면을 갖고 4개 단위로 나누어진 상가주택 [Curtain Call Apartments] - Todot Architects and Partners (0) | 2021.12.02 |
| 맥시코시티 집합주거[Tepic 22] - tallerdea (0) | 2021.07.22 |
| 액자주택[FujiwaraMuro Architects] - House in Uehonmachi (0) | 2021.04.26 |
| 노인주택[R+B Diseño Experimental] - HG Gerontological Home (0) | 2021.04.21 |